Descrizione
Mattarello – Nuova ristrutturazione in classe A
In palazzina in fase di completo rifacimento proponiamo in vendita un elegante appartamento al primo piano, caratterizzato da elevati standard costruttivi e massimo comfort abitativo.
L’immobile è in classe energetica A e beneficia di un recupero fiscale pari a € 39.000,00 (prezzo effettivo € 298.000 – 39.000 = € 256.000,00) in 10 anni.
Caratteristiche interne:
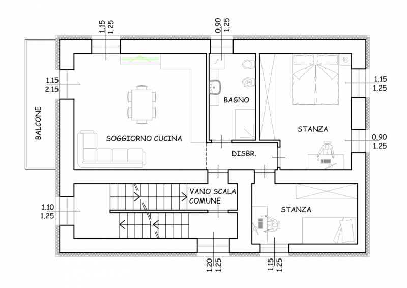
– L’appartamento si compone di ingresso, luminosa zona giorno con accesso al balcone esposto a ovest, bagno finestrato, disimpegno zona notte, camera matrimoniale e camera singola.
La ristrutturazione è mirata a garantire il massimo comfort e l’efficienza energetica grazie a:
– riscaldamento e raffrescamento a pavimento con deumidificazione integrata,
– caldaia a pompa di calore abbinata a impianto fotovoltaico,
– serramenti a triplo vetro,
– cappotto termico di ultima generazione.
L’immobile si trova a Mattarello, una delle zone più ricercate di Trento per la sua comodità e ottima vivibilità: tutti i principali servizi sono facilmente raggiungibili a piedi, e la posizione consente di collegarsi rapidamente sia al centro città che alle principali vie di comunicazione.
Sono inoltre disponibili posti auto privati e cantine.
Questa proposta rappresenta un’ottima opportunità per chi cerca una casa moderna, efficiente e situata in una zona tranquilla ma perfettamente servita.
PER MAGGIORI INFORMAZIONI:
info@cedaimmobiliare.it
0461 823004 anche WhatsApp
Per rimanere aggiornato sulle nostre proposte clicca “MI PIACE” sulla nostra pagina Facebook CEDA IMMOBILIARE e seguici su Instagram.
Per altre proposte visita il nostro sito
www.cedaimmobiliare.it
o vieni a trovarci in Ufficio
Via Fogazzaro, 27/29
38122 Trento (TN) — annuncio pubblicato con GESTIONALEIMMOBILIARE.it










