Descrizione
Pineta: In zona interna e tranquilla, vi presentiamo questo moderno edificio di nuova costruzione con solo tre appartamenti, certificato secondo lo standard CasaClima A, che garantisce un elevato comfort abitativo e bassi consumi energetici.
Tutte le unità si distinguono per la generosa metratura degli spazi esterni, l’alto livello di comfort e le moderne dotazioni.
La consegna degli appartamenti, chiavi in mano, è prevista per la fine del 2026, offrendo ampio margine di tempo per pianificare il trasloco.
Potrete godere del privilegio di un ascensore, che vi condurrà agevolmente a ogni piano, rendendo la vostra routine quotidiana più efficiente e senza sforzo.
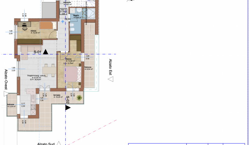
L’appartamento n. 2 qui proposto si trova al primo piano ed è composto da: ingresso, soggiorno/cucina con uscita sulla terrazza, una camera matrimoniale, due camere singole e un bagno finestrato.
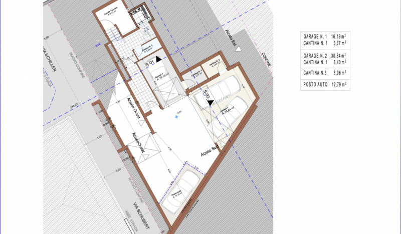
Nel prezzo è inclusa una cantina.
Posti auto coperti disponibili a partire da 25.000 €.
Garage a partire da 45.000€
convenzionato: si
superficie commerciale: 104mq
superficie calpestabile: 72mq
consegna: fine 2025
riscaldamento: centralizzato a pavimento a gas con sostegno di una pompa di calore e impianto fotovoltaico
classe energetica: A – IPE 25 KWH/m²/anno (efficienza involucro) – 9 kg CO2/m²/anno (efficienza complessiva) — annuncio pubblicato con GESTIONALEIMMOBILIARE.it
————————————————————
Deutsche Beschreibung / Descrizione in Tedesco
————————————————————
Steinmannwald: In ruhiger und zurückversetzter Lage präsentieren wir Ihnen dieses moderne, neu errichtete Gebäude mit nur drei Wohneinheiten. Es ist nach dem Klimahaus-Standard A zertifiziert, was einen hohen Wohnkomfort und niedrigen Energieverbrauch garantiert.
Alle Einheiten überzeugen durch großzügige Außenflächen, hochwertigen Wohnkomfort und moderne Ausstattung.
Die schlüsselfertige Übergabe der Wohnungen ist für Ende 2026 geplant und bietet somit ausreichend Zeit, den Umzug in aller Ruhe zu organisieren.
Sie genießen den Vorteil eines Aufzugs, der Sie bequem auf jede Etage bringt – für eine effiziente und mühelose Alltagsroutine.
Die hier angebotene Wohnung Nr. 2 befindet sich im 1. Stock und besteht aus einem Eingangsbereich, einem Wohn-/Essbereich mit Zugang zur Terrasse, einem Doppelschlafzimmer, zwei Einzelzimmern sowie einem Bad mit Fenster.
Im Kaufpreis ist ein Kellerabteil inbegriffen.
Ein überdachter Stellplatz ist optional ab 25.000 € erhältlich.
Garagen ab 45.000€
konventioniert: ja
Verkaufsfläche: 104m2
Nettofläche: 72m2
Übergabe: Ende 2025
Heizung: Zentrale Fußbodenheizung mit Gas und Unterstützung durch eine Wärmepumpe mit Photovoltaik
Energieausweis: A – Endenergieverbrauch 25 kWh/m²/Jahr (Gebäudehülle-Effizienz) – 9 kg CO2/m²/Jahr (Gesamteffizienz)


















