Descrizione
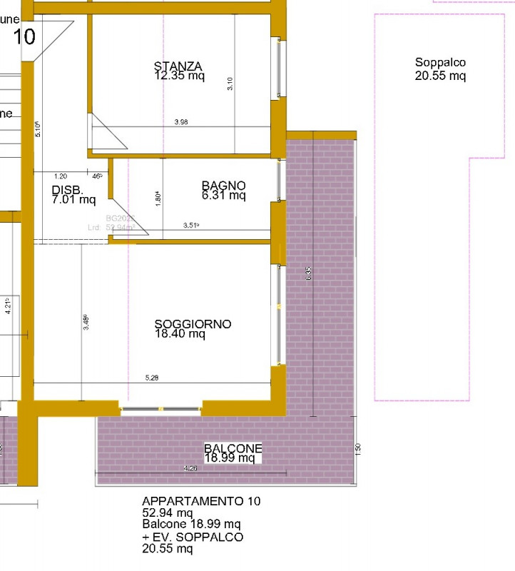
Il bilocale proposto, orientato a Sud-Ovest, è posizionato al piano primo e ultimo ed è costituito da ingresso, disbrigo, soggiorno cucina con ampie vetrate, bagno finestrato, stanza matrimoniale e un ampio balcone per una superficie commerciale di mq. 49.
Possibilità di realizzare un soppalco con una superficie fino a mq. 21 con un costo aggiuntivo.
La nuova prestigiosa costruzione, che sarà realizzata con l’impiego di tecnologie all’avanguardia volte al risparmio energetico e allo sfruttamento delle energie rinnovabili al fine di ridurre sensibilmente i consumi e aumentare il benessere abitativo, sarà realizzata a Mezzolombardo in una zona prossima al centro. Raggiungerà la prestazione di “Classe A+” e garantirà un elevato comfort ai residenti. Sulle coperture dell’immobile saranno installati pannelli fotovoltaici per la produzione di energia elettrica da utilizzare per i servizi di riscaldamento/raffrescamento che sarà del tipo a pavimento radiante e per la produzione di acqua cald sanitaria attraverso le pompe di calore ibride reversibili. Per consentire un efficiente effetto di climatizzazione estiva è prevista la realizzazione di pompe di calore autonome con split interni e la condensa sarà convogliata nella rete di scarico. Molta attenzione sarà riservata all’isolament acustico da calpestio dei solai, i muri portanti fuori terra saranno in legno a telaio con interposta isolazione termica, i muri divisori interni sono previsti a pannelli in xlam, la struittura orizzontale del piano terra sarà a soletta piena in calcestruzzo armato con armatura metallica in acciaio ad aderenza migliorata, i solai intermedi saranno in legno a travetti o in xlam, le strutture orizzontali dei balconi saranno realizzate in legno, le coperture saranno a falde inclinate del tipo ventilato con struttura lignea e manto di copertura in lamiera zincata preverniciata aggraffata con coibentazione termica in pannelli isolanti in fibra di legno. I residenti godranno di tutti i vantaggi legati all’impiego di soluzioni costruttive performanti e di materiali di pregio e avranno la certezza di vivere in un edificio di assoluta qualità rispettoso dell’ambiente, con costi di gestione sensibilmente inferiori rispetto a quelli attualmente imposti dalla Provincia Autonoma di Trento. Sono previsti appartamenti con una, due o tre stanze, posizionati al piano terra con giardino o al primo e ultimo piano con ampi balconi. Nel piano interrato sono previsti garage di diverse metrature a partire da Euro 30.000 dotati di portone basculante motorizzato e a piano terra dei posti auto a Euro 15.000. Il design progettuale dell’edificio è molto curato e di ottima immagine architettonica. Gli acquirenti potranno richiedere modifiche personalizzate rispetto al progetto purchè ciò non comprometta le tempistiche di realizzazione della costruuzione. — annuncio pubblicato con GESTIONALEIMMOBILIARE.it








