Descrizione
nr.rif: Z212
A Cologna si trova questa attraente villetta a schiera angolare con un totale di 4 unità abitative, ideale come investimento immobiliare o per una convivenza multigenerazionale. Ogni unità dispone di una propria cantina (4 cantine in totale) e offre quindi un pratico spazio aggiuntivo.
L’offerta è completata da 4 posti auto, che possono essere acquistati opzionalmente. Il prezzo di acquisto è di 15.000 € per posto auto.
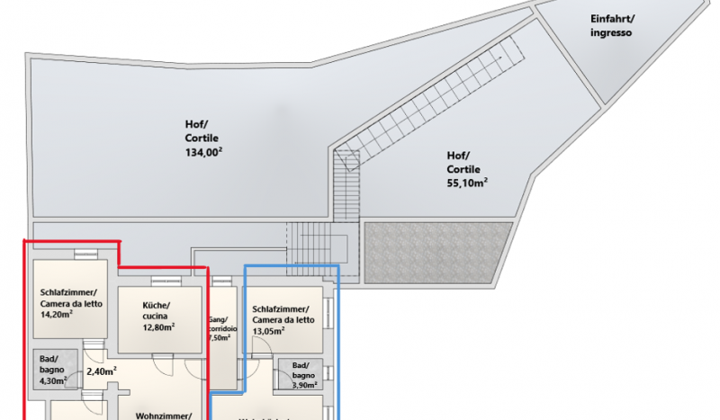
APPARTAMENTO 3 (1°PIANO): Questo appartamento colpisce per la sua spaziosa cucina abitabile, una camera da letto luminosa e un bagno moderno: l’ideale per una vita semplice e confortevole. — annuncio pubblicato con GESTIONALEIMMOBILIARE.it
————————————————————
Deutsche Beschreibung / Descrizione in Tedesco
————————————————————
Ref. Nr: Z212
In Glaning befindet sich dieses attraktive Eckenreihenhaus mit insgesamt 4 Wohneinheiten – ideal als Anlageobjekt oder für Mehrgenerationenwohnen. Jede Einheit verfügt über einen eigenen Keller (insgesamt 4 Keller) und bietet damit praktischen zusätzlichen Stauraum.
Ein besonderes Highlight ist der große Garten, der auf zwei Wohnungen aufgeteilt ist und viel Platz zum Entspannen, Spielen oder Gärtnern bietet.
Abgerundet wird das Angebot durch 4 Autostellplätze, die optional erworben werden können. Der Kaufpreis beträgt 15.000 € pro Stellplatz.
WOHNUNG 3 (1.STOCK): Diese Wohnung besticht durch eine großzügige Wohnküche, ein lichtdurchflutetes Schlafzimmer und ein modernes Bad – ideal für ein unkompliziertes Wohnen mit Komfort.




























