Descrizione
Presentiamo in esclusiva un incantevole attico a Vigo di Ton, situato in una posizione strategica e tranquilla, perfetta per chi desidera vivere immerso nella natura, senza rinunciare al comfort. Questo gioiello si trova relativamente vicino a diversi laghi e piste da sci, offrendo anche un sentiero panoramico di 150km, il conosciuto Cammino Jacopeo d’Anaunia proprio davanti casa, ideale per gli amanti dell’avventura e delle escursioni.
L’appartamento, situato al secondo e ultimo piano di una casa singola, vanta un accesso indipendente e un giardino privato, che rappresenta un’oasi di pace e relax. La proprietà è esente da spese condominiali e dotata di riscaldamento autonomo, con il tetto già predisposto per l’installazione di pannelli solari, garantendo così un’elevata efficienza energetica.
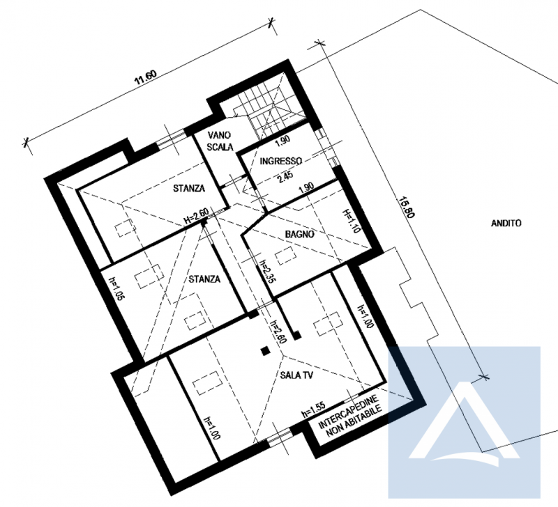
All’interno, l’attico si distingue per la sua ampia zona giorno open space, che può essere ulteriormente ampliata con la creazione di un abbaino, arricchendolo di grandi vetrate per inondare lo spazio di luce naturale. Le camere da letto, una matrimoniale e una singola, sono entrambe spaziose e accoglienti, mentre il bagno, di generose dimensioni, offre sia una vasca che una doccia.
E’ presente anche un ulteriore ingresso, attualmente collegato all’appartamento al piano inferiore ma che può essere trasformato facilmente in un pratico ripostiglio.
Essendo un attico, alcune zone presentano altezze ridotte, ma è possibile innalzare il tetto di circa 80 cm, Il giardino, lungo e versatile, offre infinite possibilità di personalizzazione.
Questa è un’occasione irripetibile per chi desidera vivere circondato dalla bellezza naturale delle Dolomiti.
Prezzo trattabile!
Ape B – IPE 325,92 Kwh/m²/anno (efficienza involucro) – 65,86 kg CO2/m2 anno (efficienza complessiva) — annuncio pubblicato con GESTIONALEIMMOBILIARE.it
————————————————————
Deutsche Beschreibung / Descrizione in Tedesco
————————————————————
Wir präsentieren exklusiv ein bezauberndes Penthouse in Vigo di Ton, das sich an einem strategischen und ruhigen Ort befindet, perfekt für diejenigen, die mitten in der Natur leben möchten, ohne auf Komfort verzichten zu müssen. Dieses Juwel liegt relativ nahe an mehreren Seen und Skigebieten und bietet auch einen Panoramarundweg von 150 km, den bekannten Jakobsweg d’Anaunia direkt vor der Haustür – ideal für Abenteuer- und Wanderliebhaber.
Die Wohnung befindet sich im zweiten und letzten Stock eines Einfamilienhauses mit unabhängigem Zugang und einem privaten Garten, der eine Oase des Friedens und der Entspannung darstellt. Die Immobilie ist frei von Hausgeldzahlungen und verfügt über eine autonome Heizung; das Dach ist bereits für die Installation von Solarpanelen vorbereitet, was hohe Energieeffizienz garantiert.
Im Inneren besticht das Penthouse durch seinen großzügigen offenen Wohnbereich, der durch die Schaffung einer Gaube weiter vergrößert werden kann. Große Fenster können hinzugefügt werden, um den Raum mit natürlichem Licht zu fluten. Die Schlafzimmer – eines mit Doppelbett und eines mit Einzelbett – sind beide geräumig und gemütlich; während das Badezimmer großzügige Dimensionen hat sowie sowohl eine Badewanne als auch eine Dusche beinhaltet.
Es gibt auch einen weiteren Eingang, derzeit verbunden mit dem Apartment im unteren Stockwerk, aber leicht in praktischen Stauraum umwandelbar.
Da es sich um ein Penthouse handelt, haben einige Bereiche reduzierte Höhen; jedoch ist es möglich, das Dach um etwa 80 cm zu erhöhen. Der lange vielseitige Garten bietet unendliche Möglichkeiten zur Personalisierung.
Dies ist eine einmalige Gelegenheit für diejenigen, die inmitten der natürlichen Schönheit der Dolomiten leben möchten.
Preis verhandelbar!
Ape B – IPE 325.92 Kwh/m²/Jahr (Hülleneffizienz) – 65.86 kg CO2/m2 Jahr (gesamt_effizienz)


























































