Descrizione
Bolzano
via di Mezzo ai Piani
MV25006
APE: classe G
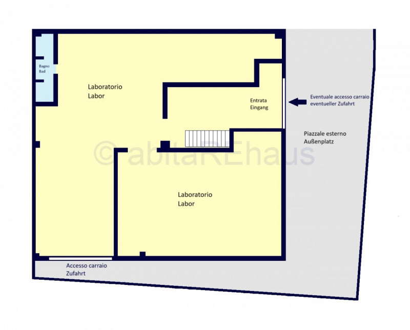
Splendido capannone in vendita nella zona artigianale nord di Bolzano, con una superficie di 550 metri.
L’immobile è ideale per attività produttive e commerciali, grazie alla sua metratura e alla posizione strategica.
Dotato di riscaldamento centralizzato autonomo con riscaldamento a pavimento e a soffitto, doppi servizi, posti auto e piazzale esterno, questo capannone rappresenta un’ottima opportunità di investimento o per uso proprio con liberazione immediata.
Contattaci subito per organizzare una visita — annuncio pubblicato con GESTIONALEIMMOBILIARE.it
————————————————————
Deutsche Beschreibung / Descrizione in Tedesco
————————————————————
Bozen
Bozner-Boden-Mitterweg
MV25006
APE: Klasse G
Wunderschöne Halle zu verkaufen in der nordlichen Gewerbezone von Bozen, mit einer Fläche von 550 Quadratmetern.
Die Immobilie ist ideal für Produktions- und Handelsaktivitäten, dank ihrer Größe und strategischen Lage.
Ausgestattet mit autonomer Zentralheizung mit Fußboden- und Deckenheizung, zwei Bädern, Parkplätzen und einem Außenbereich stellt diese Halle eine hervorragende Investitionsmöglichkeit oder für den Eigenbedarf dar, mit sofortiger Verfügbarkeit.
Kontaktieren Sie uns sofort, um einen Besichtigungstermin zu vereinbaren.


































