Descrizione
nr.rif: Z212
A Cologna si trova questa attraente villetta a schiera angolare con un totale di 4 unità abitative, ideale come investimento immobiliare o per una convivenza multigenerazionale. Ogni unità dispone di una propria cantina (4 cantine in totale) e offre quindi un pratico spazio aggiuntivo.
Una particolarità è il grande giardino, suddiviso tra due appartamenti, che offre molto spazio per rilassarsi, giocare o dedicarsi al giardinaggio.
L’offerta è completata da 4 posti auto, che possono essere acquistati opzionalmente. Il prezzo di acquisto è di 15.000 € per posto auto.
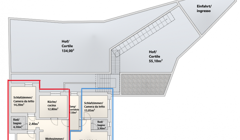
APPARTAMENTO 1 (PIANO TERRA): Questo luminoso appartamento convince con un’accogliente cucina abitabile, una spaziosa camera da letto e un bagno moderno. Il punto forte è il giardino privato (46 m²), perfetto per rilassarsi.
APPARTAMENTO 2 (PIANO TERRA): Qui vi aspettano un accogliente soggiorno, una cucina separata, una camera da letto e uno studio flessibile che può essere utilizzato anche come seconda camera da letto. L’ampio giardino (53 m²) offre ulteriore spazio libero.
APPARTAMENTO 3 (1°PIANO): Questo appartamento colpisce per la sua spaziosa cucina abitabile, una camera da letto luminosa e un bagno moderno: l’ideale per una vita semplice e confortevole.
APPARTAMENTO 4 (1°PIANO): Il punto forte di questo appartamento è l’ampio soggiorno e la cucina separata, che offrono molto spazio. Accanto alla camera da letto c’è uno studio flessibile, che può essere utilizzato anche come camera per gli ospiti. Il bagno luminoso con finestra è centrale e facilmente accessibile. — annuncio pubblicato con GESTIONALEIMMOBILIARE.it
————————————————————
Deutsche Beschreibung / Descrizione in Tedesco
————————————————————
Ref. Nr: Z212
In Glaning befindet sich dieses attraktive Eckenreihenhaus mit insgesamt 4 Wohneinheiten – ideal als Anlageobjekt oder für Mehrgenerationenwohnen. Jede Einheit verfügt über einen eigenen Keller (insgesamt 4 Keller) und bietet damit praktischen zusätzlichen Stauraum.
Ein besonderes Highlight ist der große Garten, der auf zwei Wohnungen aufgeteilt ist und viel Platz zum Entspannen, Spielen oder Gärtnern bietet.
Abgerundet wird das Angebot durch 4 Autostellplätze, die optional erworben werden können. Der Kaufpreis beträgt 15.000 € pro Stellplatz.
WOHNUNG 1 (ERDGESCHOSS): Diese helle Wohnung überzeugt mit einer einladenden Wohnküche, einem geräumigen Schlafzimmer und einem modernen Bad. Das Highlight ist der private Garten (46 m²), der perfekt zum Entspannen einlädt.
WOHNUNG 2 (ERDGESCHOSS): Hier erwarten Sie ein gemütliches Wohnzimmer, eine separate Küche, ein Schlafzimmer und ein flexibles Arbeitszimmer, das auch als zweites Schlafzimmer genutzt werden kann. Der großzügige Garten (53 m²) bietet zusätzlichen Freiraum.
WOHNUNG 3 (1.STOCK): Diese Wohnung besticht durch eine großzügige Wohnküche, ein lichtdurchflutetes Schlafzimmer und ein modernes Bad – ideal für ein unkompliziertes Wohnen mit Komfort.
WOHNUNG 4 (1.STOCK): Das Highlight dieser Wohnung sind das weitläufige Wohnzimmer und die separate Küche, die viel Platz bieten. Neben dem Schlafzimmer gibt es ein flexibles Arbeitszimmer, das auch als Gästezimmer dient. Das helle Bad mit Fenster ist zentral und gut erreichbar.




























