Descrizione
CV25005
Ufficio – Bolzano – Via Enrico Fermi
Cat. A/10
Sup. Catastale 146 mq
APE: G
Ascensore: SI
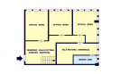
In zona industriale di Bolzano Sud, in via Enrico Fermi, abbiamo in vendita grande ufficio di Mq 146.
Molto luminoso e spazi molto comodi, attualmente cosi distribuito:
Ingresso, tre uffici, una zona cucina, un bagno.
Un ampio soppalco completa l’offerta.
Disponibilità di parcheggi condominiali.
Libero da inizio giugno 2026
Il prezzo è comprensivo di IVA.
Dai spazio alla tua azienda, contattaci se siete interessati!
Vende ABITAREHAUS
E-mail: immo@abitarehaus.it — annuncio pubblicato con GESTIONALEIMMOBILIARE.it
————————————————————
Deutsche Beschreibung / Descrizione in Tedesco
————————————————————
CV25005
Büro – Bozen – Enrico-Fermis-Straße
Kat. A/10
Katasterfläche 146 m²
Energieeffizienzklasse: G
Aufzug: JA
Im Industriegebiet von Bozen Süd, in der Enrico Fermi Strasse, steht ein großes Büro mit einer Fläche von 146 m² zum Verkauf.
Sehr hell und mit großzügigen Räumlichkeiten, derzeit wie folgt aufgeteilt:
Eingangsbereich, drei Büros, ein Küchenbereich, ein Badezimmer.
Ein großzügiges Zwischengeschoss rundet das Angebot ab.
Parkplätze in der Wohnanlage stehen zur Verfügung.
Bezugsfertig ab Anfang Juni 2026.
Der Preis versteht sich inklusive Mehrwertsteuer.
Geben Sie Ihrem Unternehmen Raum – kontaktieren Sie uns bei Interesse!
Verkäufer: ABITAREHAUS














































