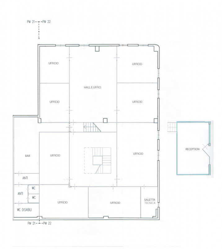
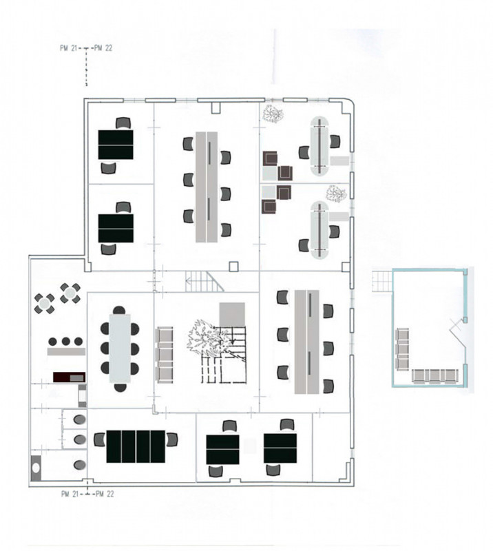
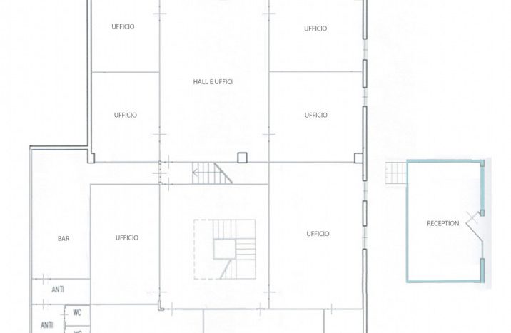
Descrizione
Proponiamo in vendita a Trento nella zona commerciale e direzionale di Trento Nord ufficio al primo piano di edificio commerciale composto da:
ampio ingresso da piano strada con scala di accesso al primo piano, grande hall/ufficio, ufficio presidenziale con possibile archivio annesso e 7 ulteriori uffici molto spaziosi; completano il piano il bar, antibagno, doppi servizi e servizio disabili.
Interni con finiture di pregio e una metratura cdi quasi 400 mq.
Completano la proprietà 4 posti auto a piano strada.
Maggiori informazioni in ufficio su appuntamento.
info@cedaimmobiliare.it
Telefono e WhatsApp 0461 823004
Per rimanere aggiornato sulle nostre proposte clicca “MI PIACE” sulla nostra pagina Facebook CEDA IMMOBILIARE e seguici su Instagram.
Per altre proposte visita il nostro sito
www.cedaimmobiliare.it
o vieni a trovarci in Ufficio
Via Fogazzaro, 27/29
38122 Trento (TN) — annuncio pubblicato con GESTIONALEIMMOBILIARE.it
























