MEANO – APPARTAMENTO BILOCALE DI NUOVA COSTRUZIONE

230.500€
Via delle Tre croci, Trento, Meano
Preferito

ID inserzione: 4844961
Prezzo: 230.500€
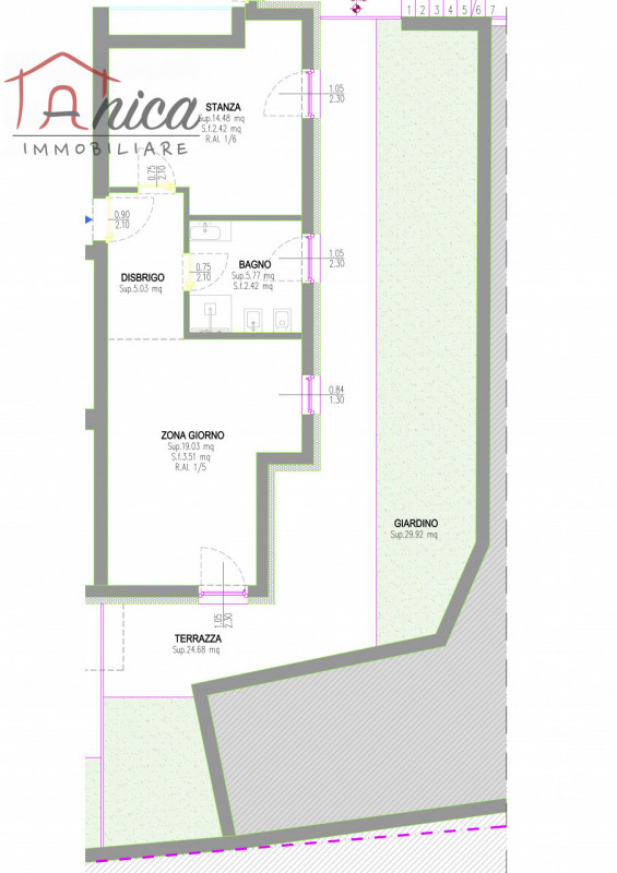
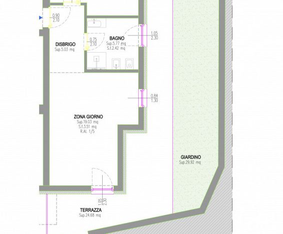
Dimensione della proprietà: 76.00 m2
Camere: 2
Camere da letto: 1
Bagni: 1
Piano: 1
Stato immobile: Nuovo
Posizione: sconosciuto

Descrizione

MEANO – In nuova costruzione di classe energetica A+ comoda a tutti i servizi, vendiamo appartamento sito al piano primo con ascensore con ampio spazio esterno, esposto a Sud-Est. L’immobile si compone di ingresso, soggiorno con angolo cottura, stanza da letto matrimoniale, bagno finestrato e ampio spazio esterno terrazzato di circa 55 mq. Possibilità di scelta delle finiture secondo capitolato. Il sistema di riscaldamento è centralizzato a pavimento con contacalorie, dotato anche di raffrescamento. L’edificio dispone di pannelli solari fotovoltaici e pompa di calore. Possibilità di acquisto del garage, a partire da 28.900 euro e/o della cantina, a partire da 9.600 euro. Recupero fiscale di 48.000,00 euro in dieci anni. Disponibili ulteriori appartamenti con differenti metrature ad altri piani. — annuncio pubblicato con GESTIONALEIMMOBILIARE.it

Caratteristiche interne
Ascensore
Altre caratteristiche
Pannelli Fotovoltaici
Pannelli Solari
Riscaldamento a pavimento
Riscaldamento Centralizzato
Soggiorno Angolo Cottura
Terrazzi

Indirizzo: Via delle Tre croci
Città:
Zona:
Stato/Contea:
Cerniera lampo: 38121
Paese: Italia

Trasporto
Supermercati
Scuole
Ristoranti
Farmacie
Ospedali

Contattami

Contattami

Confronta gli annunci

Anica Immobiliare