Descrizione
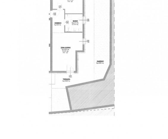
MEANO – In nuova costruzione di classe energetica A + comoda a tutti i servizi, vendiamo appartamento sito al piano primo con spazio esterno, esposto a Sud Ovest. L’immobile si compone di soggiorno con angolo cottura, disbrigo, una stanza da letto , un bagno finestrato ampio terrazzo e spazioso giardino di 53 mq, dal quale si accede sia dalla zona giorno che dalla zona notte. Scelta delle finiture secondo capitolato. Il sistema di riscaldamento è centralizzato a pavimento con il contacalorie dotato anche di raffrescamento. L’edificio dispone di pannelli solari fotovoltaici posizionati sulla copertura dell’edificio e cappotto esterno; predisposizione per la centralina domotica e recupero delle acque piovane per l’irrigazione.
Possibilità di acquisto del garage e/o della cantina, a partire da 25.700 euro.
Disponibili ulteriori appartamenti con differenti metrature ad altri piani. Recupero fiscale di € 48.000,00 in dieci anni. — annuncio pubblicato con GESTIONALEIMMOBILIARE.it


