Descrizione
Ortisei, Val Gardena; In una zona di forte passaggio e grande visibilità, direttamente sulla strada principale della Val Gardena, proponiamo in affitto un ampio locale commerciale ideale per mettere in risalto il proprio marchio.
L’immobile si presta perfettamente a diverse tipologie di attività, quali negozi, uffici, banche, studi professionali, bar, ristoranti o magazzini.
L’immobile si presenta in buono stato conservativo, con ambienti spaziosi e ben distribuiti.
Completa l’immmobile 4 posti auto in Garage e diversi parcheggi pubblici direttamente davanti al locale.
Offre una soluzione unica per chi è alla ricerca di un immobile versatile, funzionale e situato in una delle zone più richieste della Val Gardena.
Il locale viene proposto sia in vendita sia in affitto.
Disponibile da subito
Affitto mensile: 4.200€/mese
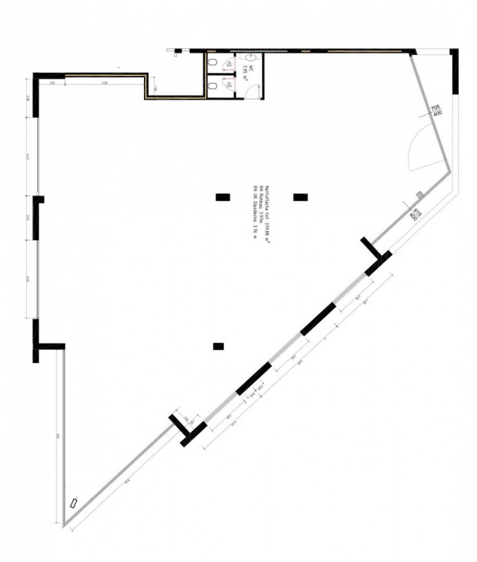
Sup. commerciale: 400mq
Sup. netta: 380mq
riscaldamento: autonomo
classe energetica: G — annuncio pubblicato con GESTIONALEIMMOBILIARE.it
————————————————————
Deutsche Beschreibung / Descrizione in Tedesco
————————————————————
St. Ulrich, Gröden; in sehr guter Lage mit hoher Sichtbarkeit, direkt an der Hauptstraße des Grödnertals, bieten wir ein großes Geschäftslokal zur Miete an. Die Immobilie eignet sich ideal, um Ihr Unternehmen oder Ihre Marke optimal zu präsentieren.
Das Lokal ist vielseitig nutzbar, zum Beispiel als Geschäft, Büro, Bank, Lagerfläche Bar oder Restaurant.
Die Räumlichkeiten sind großzügig geschnitten, gut aufgeteilt und befinden sich in gutem Zustand.
Zur Immobilie gehören 4 Stellplätzen in der Garage sowie weitere öffentliche Parkmöglichkeiten direkt vor dem Gebäude.
Dieses Objekt ist die ideale Lösung für alle, die eine flexible und gut sichtbare Gewerbefläche in einer der attraktivsten Lagen des Grödnertals suchen.
Das Geschäftslokal wird sowohl zum Verkauf als auch zur Miete angeboten.
Konventioniert: nein
Miete: 4.200€/Monat
Verkaufsfläche: 400m²
Wohnfläche: 380m²
Heizung: Autonom
Kondominiumsspesen: ca. 0 €/Monat
Energieklasse: G
Kategorie: D6


