Descrizione
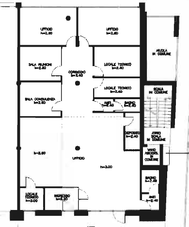
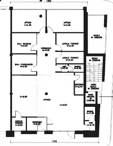
In Via dei Solteri a Trento proponiamo in vendita locale commerciale al piano terra. L’immobile presenta un ingresso indipendente che garantisce accesso diretto ai clienti. Al suo interno troverete cinque locali principali estremamente versatili, perfetti per ospitare uffici o spazi espositivi. Sono inoltre presenti tre locali tecnici che possono essere utilizzati come magazzini o stanze attrezzate secondo le esigenze della vostra attività. Per completare la funzionalità dell’unità ci sono anche due servizi igienici con antibagno e uno spazioso deposito. Un valore aggiunto fondamentale è costituito dai quattro posti auto scoperti di proprietà, offrendo comodi spazi per il parcheggio sia per i dipendenti che per i clienti. La zona dei Solteri si distingue non solo per l’ottima presenza commerciale ma anche per la facilità d’accesso alle maggiori vie arteriali e ai mezzi pubblici, rendendo questo luogo facilmente raggiungibile da ogni parte della città. Diverse attività commerciali già consolidate nei dintorni offrono sinergie interessanti e potenziale clientela abituale. Attestato di prestazione energetica in fase di realizzazione. Maggiori informazioni in ufficio. — annuncio pubblicato con GESTIONALEIMMOBILIARE.it











































