Descrizione
Rif. AV23025_A6
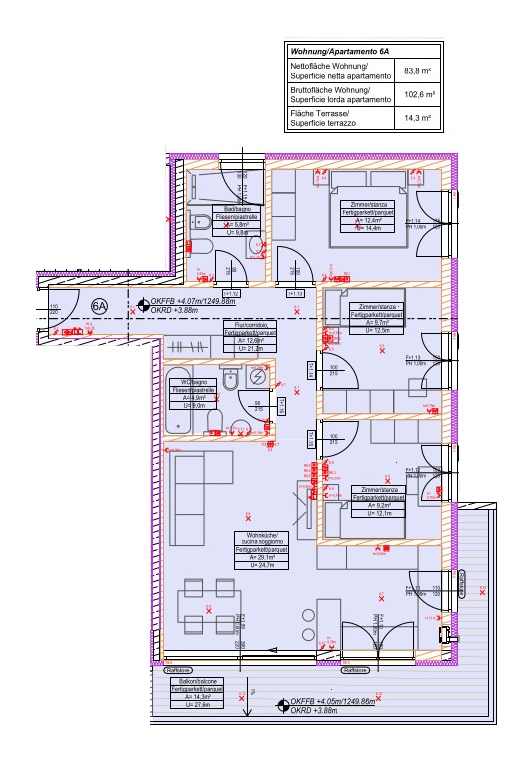
Soprabolzano
A.P.E: Casa Clima A Nature
In una palazzina moderna di nuova costruzione:
– Soggiorno con zona pranzo
– Camere da letto: 3
– Bagni: 2
– Terrazza: 14,90 mq
—
– Superficie dei vendita: 110 mq
Incluso:
– Cantina
Eventuale
– Garage – venduto a parte da Euro 35000-
Renon – Soprabolzano
AV23025_A6
L’edificio:
Questo immobile è sito in un edificio di nuova costruzione, con inizio lavori anno 2023 con fine stimata per il 2026.
L’edificio ha tutti i confort moderni e necessari per vivere con qualità come ad esempio la connessione al teleriscaldamento con gestione autonoma anche da remoto dell’accensione e spegnimento e una certificazione Casaclima A Nature.
L’edificio proposto si trova nel centro di Soprabolzano in via Catinaccio collegato con una strada di nuova realizzazione.
L’appartamento si trova al secondo ed ultimo piano – con vista aperta – di questo nuovo complesso.
Per i vostri ospiti, saranno disponibili posti auto esterni di uso condiviso.
L’abitazione è sottoposta ai vincoli provinciali per residenti e NON può essere utilizzato anche come immobile da investimento/ferie.
Siete interessati a questa offerta?
Chiamateci – o scriveteci – e prendete un appuntamento in ufficio.
Vendita soggetta ad IVA.
Contattaci adesso! — annuncio pubblicato con GESTIONALEIMMOBILIARE.it
————————————————————
Deutsche Beschreibung / Descrizione in Tedesco
————————————————————
Ref. AV23025_A6
Oberbozen
Energieausweis: KlimaHaus A Nature
In einem modernen Neubau:
– Wohnzimmer mit Essbereich
– Schlafzimmer: 3
– Badezimmer: 2
– Terrasse: 14,90 m²
—
– Verkaufsfläche: 110 m²
Inklusive:
– Keller
Eventuell
– Garage – separat zu verkaufen ab 35.000 Euro
Ritten – Oberbozen
AV23025_A6
Das Gebäude:
Diese Immobilie befindet sich in einem Neubau, dessen Bau im Jahr 2023 begonnen hat und voraussichtlich 2026 abgeschlossen sein wird.
Das Gebäude verfügt über allen modernen Komfort, der für eine hohe Lebensqualität erforderlich ist, wie z. B. einen Anschluss an die Fernwärme mit autonomer Fernsteuerung zum Ein- und Ausschalten und eine Klimahaus A Nature-Zertifizierung.
Das vorgeschlagene Gebäude befindet sich im Zentrum von Oberbozen in der Rosengartenstr. und ist über eine neu gebaute Straße erreichbar.
Die Wohnung befindet sich im zweiten und letzten Stock dieses neuen Komplexes und bietet einen freien Blick.
Für Ihre Gäste stehen Außenparkplätze zur gemeinsamen Nutzung zur Verfügung.
Die Wohnung unterliegt den provinziellen Auflagen für Einwohner und darf NICHT als Investitions-/Ferienimmobilie genutzt werden.
Sind Sie an diesem Angebot interessiert?
Rufen Sie uns an oder schreiben Sie uns und vereinbaren Sie einen Termin in unserem Büro.
Der Verkauf unterliegt der Mehrwertsteuer.
Kontaktieren Sie uns jetzt!



























