Descrizione
Termeno,via dei Molini, all’interno di una nuova costruzione certificata CasaClima C, proponiamo questo luminoso trilocale.
Situato al primo piano con ascensore l’appartamento è composto da ingresso, bagno con finestra, camera matrimoniale, camera singola e zona giorno.
La camera matrimoniale, grazie alla sua particolare conformazione, verrà arredata dal costruttore con mobili realizzati da artigiani locali.
L’immobile è dotato di riscaldamento a pavimento con pompa di calore, con possibilità di conversione per il raffrescamento a pavimento.
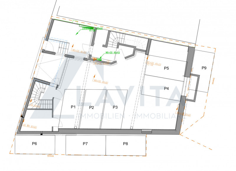
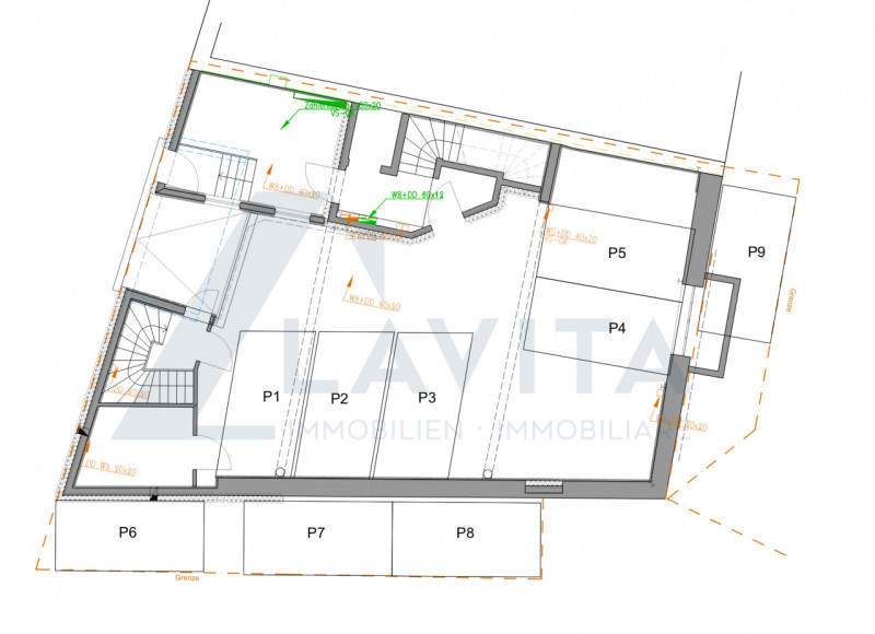
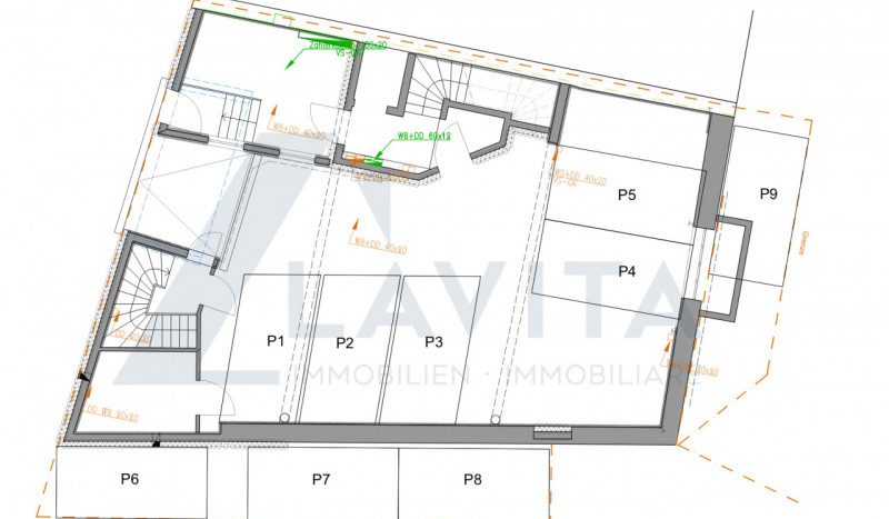
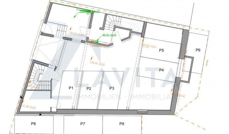
Sono disponibili posti auto sia scoperti che coperti a partire da 15.000€.
Inoltre, è possibile usufruire di un piccolo spazio verde antistante la casa, adibito a orto.
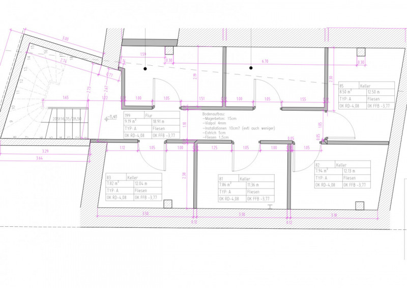
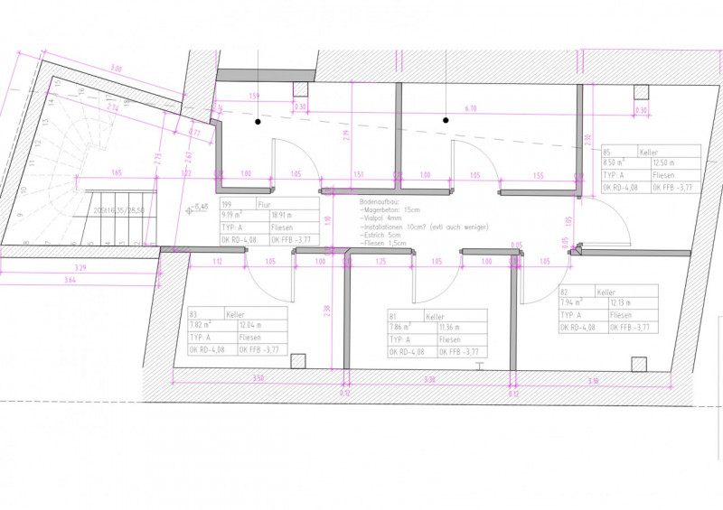
Completa l’appartamento una cantina da 5,7mq inclusa nel prezzo.
Sono possibili detrazioni fiscali fino a 48.000€.
convenzionato: si
superficie commerciale: 105,69mq
superficie calpestabile: 76.33 mq
riscaldamento: centralizzato a pavimento con pompa di calore
spese condominiali: ND€/mese
classe energetica: Climahaus C — annuncio pubblicato con GESTIONALEIMMOBILIARE.it
————————————————————
Deutsche Beschreibung / Descrizione in Tedesco
————————————————————
In einem Neubau mit CasaClima C Zertifizierung bieten wir diese helle Dreizimmerwohnung im ersten Stock mit Aufzug an.
Die Wohnung besteht aus Eingangsbereich, Badezimmer mit Fenster, Schlafzimmer, Einzelzimmer und Wohnbereich. Das Schlafzimmer wird aufgrund seiner besonderen Form vom Bauherrn mit maßgefertigten Möbeln von lokalen Handwerkern eingerichtet.
Die Immobilie ist mit Fußbodenheizung und Wärmepumpe ausgestattet, mit der Möglichkeit zur Umstellung auf Fußbodenkühlung.
Es stehen sowohl offene als auch überdachte Parkplätze ab 15.000 € zur Verfügung. Außerdem kann ein kleiner Gartenbereich vor dem Haus als Gemüsegarten genutzt werden.
Ein Keller mit einer Fläche von 6,37 m² ist im Preis inbegriffen.
Konventioniert: Nein
Handelsfläche: 105,69m²
Wohnfläche: 76.33m²
Heizung: Zentralheizung mit Fußbodenheizung und Wärmepumpe
Betriebskosten: n. a. €/Monat
Kondominiumsspesen: Klimahaus C
















































