Descrizione
Merano, Via Verdi –Porzione di Casa con ampio giardino privato: In una zona residenziale tranquilla e molto richiesta di Merano, proponiamo in esclusiva questo elegante porzione di casa disposta su tre livelli, situato in un condominio costruito nel 2001.
L’abitazione si compone come segue:
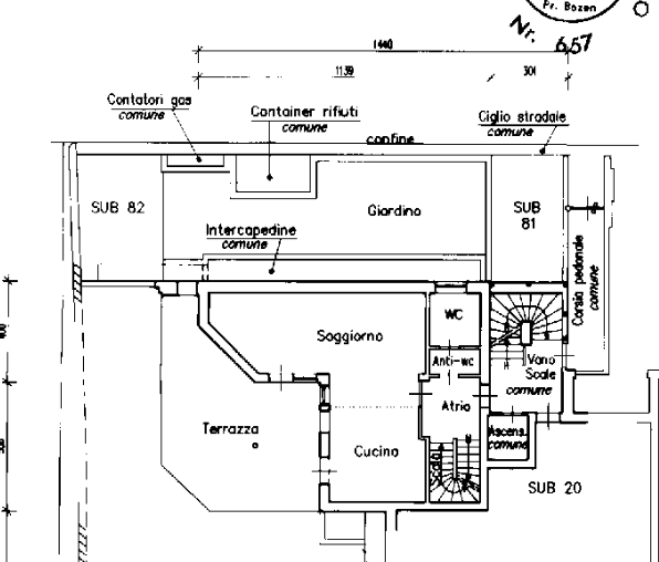
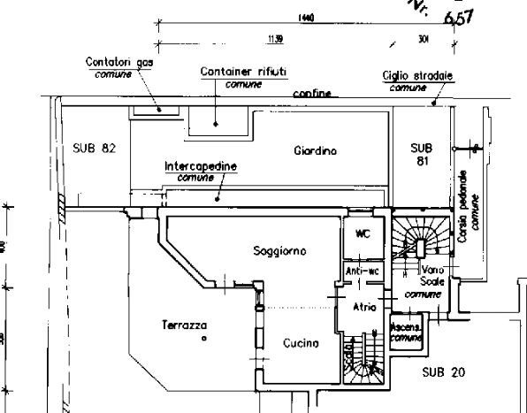
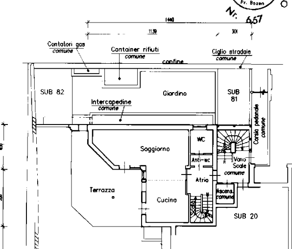
Piano terra: ingresso, luminoso soggiorno con zona pranzo e cucina abitabile, entrambi con accesso diretto al giardino privato di circa 380 m², spazioso e soleggiato per gran parte della giornata. Completa il piano un bagno finestrato di servizio.
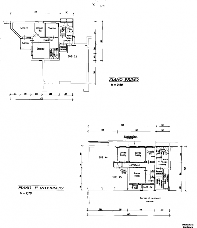
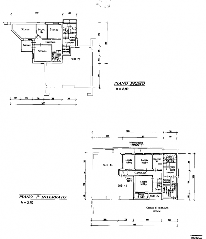
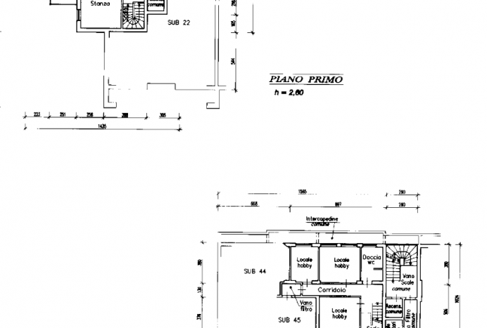
Primo piano: zona notte con due camere matrimoniali (una delle quali dotata di cabina armadio) e una camera singola. Tutte le camere matrimoniali dispongono di accesso al terrazzino. Il piano è servito da un ampio bagno finestrato con vasca e doccia.
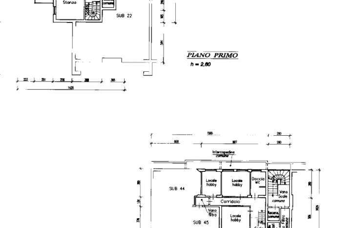
Piano interrato: stanza hobby, lavanderia, cantina e un ulteriore bagno di servizio.
Completano la proprietà un garage doppio con accesso diretto all’abitazione, disponibile con un extra di 45.000 €, e un posto auto esterno privato incluso nel prezzo dell’abitazione.
La caldaia è di recente installazione (2025).
L’immobile viene venduto arredato con mobili su misura, realizzati con materiali di qualità e perfettamente integrati negli spazi.
vincoli: no
convenzionato: no
superficie commerciale: 247 mq
superficie calpestabile: 109mq
riscaldamento: autonomo a gas
spese condominiali: 200/mese
classe energetica: D — annuncio pubblicato con GESTIONALEIMMOBILIARE.it
————————————————————
Deutsche Beschreibung / Descrizione in Tedesco
————————————————————
Meran, Verdi Straße– Vierzimmerwohnung mit großem Privatgarten:
In einer ruhigen und sehr gefragten Wohngegend von Meran bieten wir exklusiv diese elegante Vierzimmerwohnung auf drei Ebenen an, gelegen in einem Wohnhaus, das im Jahr 2001 erbaut wurde.
Die Immobilie teilt sich wie folgt auf:
Erdgeschoss: Eingang, helles Wohnzimmer mit Essbereich und separater, großzügiger Wohnküche, beide mit direktem Zugang zum privaten Garten von ca. 380 m², der den größten Teil des Tages sonnig und lichtdurchflutet ist. Zudem befindet sich hier ein Tages-WC mit Fenster.
Obergeschoss: Schlafbereich mit zwei Doppelzimmern (eines davon mit begehbarem Kleiderschrank) und einem Einzelzimmer. Die Doppelzimmer verfügen über Zugang zu einem Balkon/Terrasse. Auf dieser Etage befindet sich außerdem ein großes Badezimmer mit Fenster, ausgestattet mit Badewanne und Dusche.
Untergeschoss: Hobbyraum, Waschküche, Keller sowie ein weiteres Badezimmer.
Abgerundet wird die Immobilie durch eine Doppelgarage mit direktem Zugang zur Wohnung, die gegen einen Aufpreis von 45.000 € erhältlich ist, sowie einen privaten Außenstellplatz, der im Kaufpreis der Wohnung inbegriffen ist.“
Die Heizanlage wurde im Jahr 2025 erneuert.
Die Immobilie wird inklusive maßgefertigter Einbaumöbel verkauft und kann auch als Ferienwohnung genutzt werden!
konventioniert: nein
Handelsfläche: 247m²
Wohnfläche: 109m2
Heizung: autonome Gasheizung
Kondominiumsspesen: 200€/Monat
Energieklasse: D






























































































