Descrizione
Doladizza: All’interno di una nuova costruzione certificata CasaClima A, proponiamo questo luminoso e ampio quadrilocale con terrazza, costruito nel 2020.
L’immobile è situato al secondo e terzo piano, servito da ascensore, di un condominio composto da 12 appartamenti.
Il terzo piano è composto da un ingresso che conduce, tramite corridoio, alla zona giorno con cucina e soggiorno, con accesso a un ampio terrazzo di 79 mq, una stanza da letto matrimoniale con cabina armadio, un bagno e un bagno-WC, con accesso al balcone.
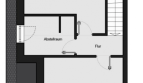
Salendo la scala interna si raggiunge il secondo piano, composto da un corridoio, due stanze da letto matrimoniali, di cui una con accesso a un terrazzo, e un ripostiglio.
Completano la proprietà una cantina inclusa nel prezzo.
Sono inoltre disponibili garage al prezzo di € 23.000.
L’immobile verrà consegnato chiavi in mano entro pochi mesi, con la possibilità di scegliere materiali e finiture.
convenzionato: si
superficie commerciale: 129mq
superficie calpestabile: 92mq
riscaldamento: centralizzato a pavimento con pompa di calore
spese condominiali: ND€/mese
classe energetica: Climahaus C — annuncio pubblicato con GESTIONALEIMMOBILIARE.it
————————————————————
Deutsche Beschreibung / Descrizione in Tedesco
————————————————————
Kalditsch; innerhalb eines Neubaus mit Klimahaus-A-Zertifizierung bieten wir diese helle und großzügige Vierzimmerwohnung mit Terrasse, Baujahr 2020, an.
Die Immobilie befindet sich im zweiten und dritten Stock, erreichbar mit Aufzug, in einer Wohnanlage mit 12 Wohneinheiten.
Das dritte Obergeschoss besteht aus einem Eingangsbereich, der über einen Flur in den Wohnbereich mit Küche und Wohnzimmer führt, mit Zugang zu einer großzügigen Terrasse von 79 m². Zudem befinden sich hier ein Schlafzimmer mit begehbarem Kleiderschrank, ein Badezimmer sowie ein Bad/WC mit Zugang zum Balkon.
Über die interne Treppe gelangt man in das zweite Obergeschoss, bestehend aus einem Flur, zwei Doppelzimmern, eines davon mit Zugang zu einer Terrasse, sowie einem Abstellraum.
Zur Immobilie gehören außerdem ein Keller der im Preis inbegriffen sind.
Zusätzlich stehen Garagen zum Preis von € 23.000 zur Verfügung.
Die Immobilie wird schlüsselfertig innerhalb weniger Monate übergeben, mit der Möglichkeit, Materialien und Ausstattungen individuell auszuwählen.
konventioniert: ja
Handelsfläche: 129m²
Wohnfläche: m2
Heizung: autonome Fußbodenheizung
Kondominiumsspesen: ND€/
Energieklasse: Klimahaus C






















































