Descrizione
Proponiamo in vendita un grande appartamento quadrilocale situato in una delle zone più centrali e vivaci di Trento, a pochi passi da Piazza Duomo. Questa proprietà offre l’opportunità unica di vivere immersi nella storia e nella cultura della città.
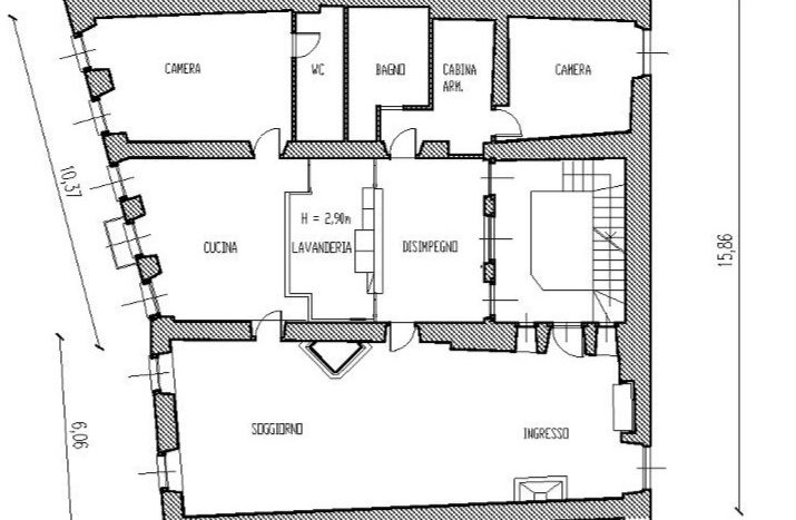
L’appartamento si sviluppa su una superficie molto grande, ideale per famiglie o professionisti che desiderano uno spazio confortevole e versatile. La disposizione degli spazi è funzionale: include un grande ingresso, un soggiorno con 2 caminetti, una cucina separata ben attrezzata, una lavanderia, una camera matrimoniale con cabina armadio e bagno en suite e un’ulteriore camera matrimoniale con annesso spazio guardaroba e ulteriore bagno. A piano seminterrato 2 spazio cantine.
L’immobile è stato completamente ristrutturato nel 2023.
La posizione strategica permette di godere della vicinanza ai principali servizi come negozi, ristoranti tipici, scuole ed aree verdi. Inoltre, la fermata dei mezzi pubblici è facilmente raggiungibile a piedi, rendendo gli spostamenti verso altre zone della città estremamente comodi.
Tra le caratteristiche distintive dell’immobile troviamo il riscaldamento autonomo e finiture interne di alta qualità che conferiscono all’ambiente un tocco elegante e moderno. L’ampia metratura consente anche la personalizzazione degli spazi secondo i propri gusti.
Non perdere questa opportunità esclusiva! Contatta subito l’agenzia per organizzare una visita o ricevere ulteriori informazioni sull’immobile.
Per maggiori informazioni contattaci e per prenotare una visita:
info@cedaimmobiliare.it
Telefono e WhatsApp 0461 823004
Per rimanere aggiornato sulle nostre proposte clicca “MI PIACE” sulla nostra pagina Facebook CEDA IMMOBILIARE e seguici su Instagram.
Per altre proposte visita il nostro sito
www.cedaimmobiliare.it
o vieni a trovarci in Ufficio
Via Fogazzaro, 27/29
38122 Trento (TN) — annuncio pubblicato con GESTIONALEIMMOBILIARE.it










































































