Descrizione
Gleno; In una zona tranquilla di Gleno, vi presentiamo questo edificio moderno la cui costruzione inizierà nell’autunno del 2026, certificato secondo lo standard CasaClima A. In totale il progetto comprende 6 appartamenti; 4 trilocali e due quadrilocali tutti dotati o di giardino o di terrazza. La consegna dei primi alloggi, chiavi in mano, è prevista per la primavera/estate 2028, offrendo ampio margine di tempo per pianificare il trasloco.
Il complesso residenziale sarà realizzato secondo lo standard CasaClima A Nature, che garantisce un elevato comfort abitativo e bassi consumi energetici. Inoltre, la costruzione sarà dotata di ascensore.
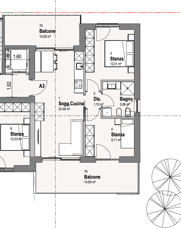
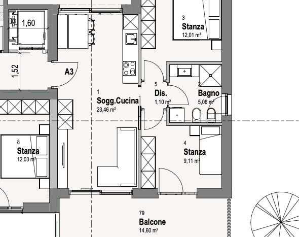
L’appartamento n. 03 è situato al primo piano ed è composto da un soggiorno e una cucina con accesso al balcone una camera da letto singola anch’essa con accesso al balcone, una camera da letto matrimoniale e un bagno.
Completa la proprietà una cantina inclusa nel prezzo.
È disponibile acquistare posti auto, sia interni che esterni, oltre a garage privati.
convenzionato: si
superficie commerciale: 83mq
superficie calpestabile: 50mq
consegna: Primavera 2028
riscaldamento: a pavimento – pompa di calore e impianto fotovoltaico
spese condominiali: ND
classe energetica: A — annuncio pubblicato con GESTIONALEIMMOBILIARE.it
————————————————————
Deutsche Beschreibung / Descrizione in Tedesco
————————————————————
In einer ruhigen Lage von Glen präsentieren wir Ihnen dieses moderne Gebäude, dessen Bau im Herbst 2026 beginnen wird und das nach dem CasaClima-A-Standard zertifiziert ist. Insgesamt umfasst das Projekt 6 Wohnungen: 4 Dreizimmerwohnungen und 2 Vierzimmerwohnungen, alle mit entweder Garten oder Terrasse. Die schlüsselfertige Übergabe der ersten Einheiten ist für Frühjahr/Sommer 2028 vorgesehen und bietet ausreichend Zeit für die Planung Ihres Umzugs.
Die Wohnanlage wird nach dem Standard CasaClima A Nature errichtet, der einen hohen Wohnkomfort und einen geringen Energieverbrauch garantiert. Zudem wird das Gebäude mit einem Aufzug ausgestattet sein.
Die Wohnung Nr. 03 befindet sich ersten Stock und besteht aus einem Wohnzimmer und einer Küche mit Zugang zum Balkon, einem Doppelschlafzimmer, einem Einzelzimmer mit Zugang zum Balkon sowie einem Badezimmer.
Zur Immobilie gehört ein Keller, der im Preis inbegriffen ist.
Es besteht die Möglichkeit, Stellplätze innen und außen, sowie private Garagen zusätzlich zu erwerben.
Konventioniert: ja
Handelsfläche: 83 m²
Nettofläche: 50m²
Übergabe: Frühjahr 2028
Heizung: mit Fußbodenheizung – Wärmepumpe und Photovoltaikanlage
Kondomoniumsspesen: ND
Energieklasse: Klimahaus A








