Descrizione
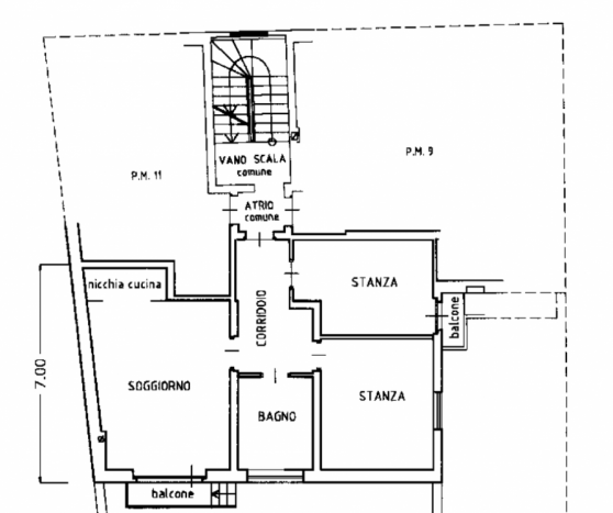
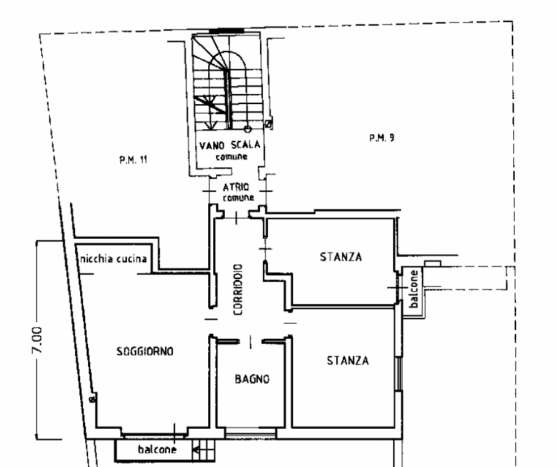
Zona Aslago; Con incarico in esclusiva, proponiamo in vendita un ampio appartamento situato al primo piano di una palazzina sprovvista di ascensore.
L’immobile è composto da ingresso, spazioso soggiorno e cucina abitabile con accesso diretto alla terrazza di 33mq, due camere da letto, di cui una con accesso ad un secondo balcone ed un bagno finestrato.
Il bagno è stato ristrutturato nel 2018, mentre tutto il resto dell’appartamento è in ottime condizioni.
Completa la proprietà una spaziosa cantina, inclusa nel prezzo.
L’appartamento si presenta in ottime condizioni generali e non necessita di interventi di ristrutturazione.
L’immobile sarà disponibile indicativamente a partire da ottobre 2026 e viene venduto semi-arredato.
E’ presente la possibilità di subentrare in affitto di un garage nelle vicinanze a 100€ mensili
convenzionato: NO
superficie commerciale: 96 mq
superficie calpestabile: 73mq
riscaldamento: termoautonomo
spese condominiali: 1.000€/anno
classe energetica: G (in fase di definizione) — annuncio pubblicato con GESTIONALEIMMOBILIARE.it
————————————————————
Deutsche Beschreibung / Descrizione in Tedesco
————————————————————
Haslach; Mit Exklusivauftrag bieten wir diese großzügige Wohnung im ersten Obergeschoss eines Wohngebäudes ohne Aufzug zum Verkauf an.
Die Immobilie verfügt über einen Eingangsbereich, ein geräumiges Wohnzimmer sowie eine Küche, mit direktem Zugang zur 33m² großen Terrasse. Weiters stehen zwei Schlafzimmer zur Verfügung, eines davon mit Zugang zum Balkon, sowie ein Badezimmer.
Das Badezimmer wurde im Jahr 2018 renoviert.
Ein geräumiger Keller, der im Kaufpreis inbegriffen ist, rundet das Angebot ab.
Die Wohnung befindet sich in sehr gutem Zustand und erfordert keine Renovierungsarbeiten.
Es besteht die Möglichkeit, einen nahegelegenen Garagenmietvertrag für 100 € pro Monat zu übernehmen.
Die Immobilie ist voraussichtlich ab Oktober 2026 verfügbar und wird teilmöbliert verkauft!
Konventioniert: Nein
Handelsfläche: 96 m²
Nettofläche: 73m²
Heizung: autonom
Kondominiumsspesen: 1.000€/Jahr
Energieklasse: G (nicht definiert)
















































