Descrizione
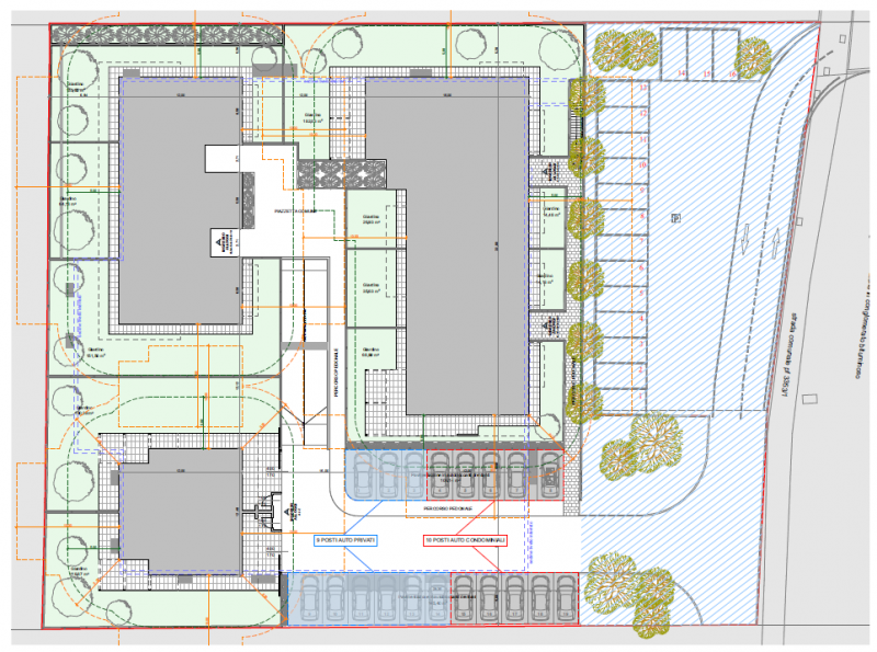
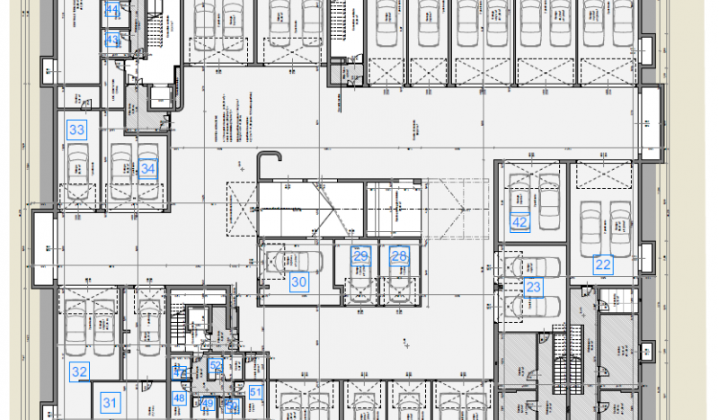
VILLA IN BIFAMILIARE SU DUE LIVELLI CON AMPIO GIARDINO. In zona soleggiata ad Aldeno vendiamo NUOVA REALIZZAZIONE IN CLASSE A+ improntata al massimo risparmio energetico e all’abbattimento dei costi di gestione. Disponiamo di villa bifamiliare con ampi giardini e appartamenti di varie metrature: due stanze, tre stanze, doppi servizi, giardini privati e terrazze. Tutti gli appartamenti sono dotati di ampia zona giorno con vetrate triplo vetro, tapparelle elettriche e frangisole. RISCALDAMENTO E RAFFRESCAMENTO A PAVIMENTO, POMPE DI CALORE, RICIRCOLO DELL’ARIA CON SISTEMA VMC, FOTOVOLTAICO, SOLARE, IMPIANTO DI ALLARME PERIMETRALE IN TUTTI GLI APPARTAMENTI. POSSIBILITA’ SCELTA FINITURE. CAPITOLATO CON FINITURE DI PREGIO. Consegna prevista luglio 2026. Maggiori informazioni in ufficio. (A2) — annuncio pubblicato con GESTIONALEIMMOBILIARE.it








































