Descrizione
Nr. Rif.: Z146 I
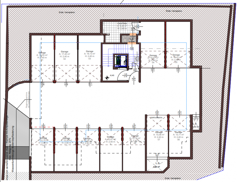
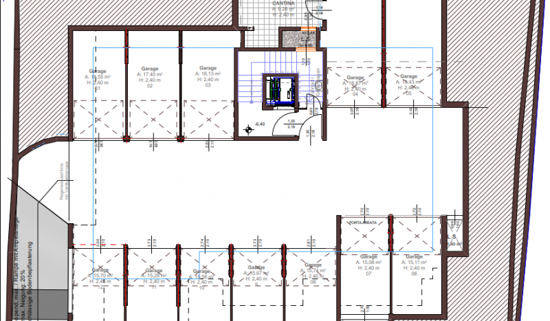
Siamo lieti di potervi offrire 9 moderni appartamenti di nuova costruzione di diverse dimensioni e tipologie in una delle zone residenziali più rinomate di Appiano sulla Strada del Vino. Il nuovo edificio residenziale si sviluppa su 4 piani e sarà presumibilmente pronto per la consegna a metà del 2027.Le unità abitative convincono per la loro architettura luminosa e per la possibilità di una personalizzazione degli spazi interni. Un’ampia scelta di materiali di alta qualità consente di creare un ambiente abitativo in linea con il proprio stile di vita e le proprie esigenze. La costruzione secondo lo standard “A-Natura” garantisce non solo un risparmio energetico a lungo termine, ma anche il massimo comfort abitativo. Inoltre, potrete beneficiare di una garanzia decennale del costruttore, per un investimento sicuro e senza pensieri. Garage e cantine sono disponibili per l’acquisto separato e completano questa offerta esclusiva.
Convenzionato: Sì
Svincolabile dalla convenzione: Sì — annuncio pubblicato con GESTIONALEIMMOBILIARE.it
————————————————————
Deutsche Beschreibung / Descrizione in Tedesco
————————————————————
Nr. Rif.: Z146 I
Wir freuen uns, Ihnen 9 moderne Neubauwohnungen in unterschiedlichen Größen und Ausstattungsvarianten in einer der renommiertesten Wohngegenden von Eppan an der Weinstraße anbieten zu dürfen. Das neu errichtete Wohnhaus erstreckt sich über 4 Stockwerke und wird voraussichtlich Mitte 2027 bezugsfertig sein. Die Wohneinheiten überzeugen durch ihre lichtdurchflutete Architektur sowie die Möglichkeit einer individuellen Raumgestaltung. Eine große Auswahl hochwertiger Materialien erlaubt es Ihnen, das Ambiente ganz nach Ihrem persönlichen Lebensstil und Ihren Wünschen zu gestalten. Die Bauweise nach dem „A-Natur-Standard“ garantiert nicht nur langfristige Ersparnisse im Energieverbrauch, sondern auch höchsten Wohnkomfort. Zudem genießen Sie eine 10-jährige Garantie des Bauherrn – für ein sicheres und sorgenfreies Investment. Garagen und Kellerräume stehen separat zum Erwerb zur Verfügung und runden das attraktive Angebot ab.
Konventioniert: Ja
Freistellung möglich: Ja





























