ID inserzione: 4566333
Prezzo: 1.450€
Dimensione della proprietà: 200.00 m2
Bagni: 2
Piano: Interrato
Stato immobile: Buono/Abitabile
Posizione: area industriale/artigianale
Descrizione
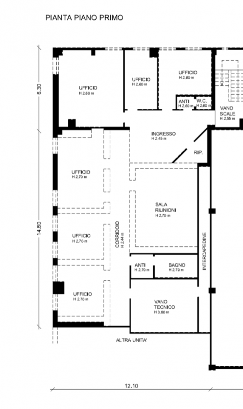
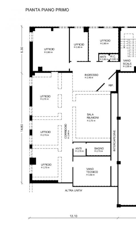
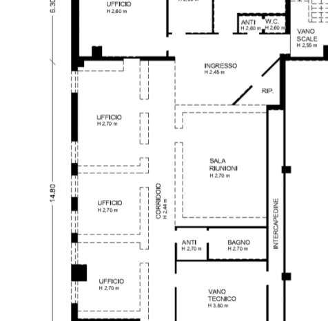
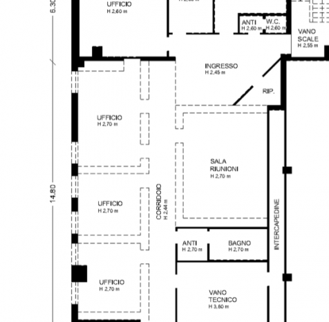
A Lavis, in zona industriale, proponiamo in affitto uffici con servizi.
L’immobile è così composto:
Piano primo senza ascensore di 200 mq di uffici arredati dotati di doppi servizi igienici.
A completare la proprietà diversi posti auto in piazzale comune.
Dotato interamente di impianto di illuminazione e di riscaldamento.
Canone mensile di 1500 € + IVA — annuncio pubblicato con GESTIONALEIMMOBILIARE.it
Caratteristiche interne
Arredato
















