Descrizione
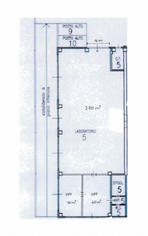
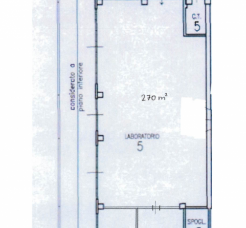
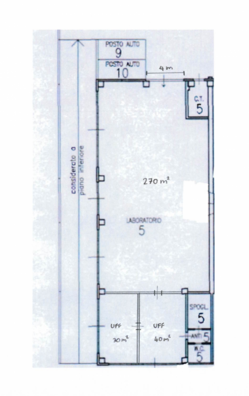
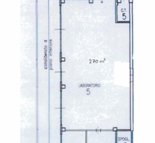
Spini di Gardolo, nella zona industriale proponiamo in vendita capannone di 360 mq con uffici e servizi. L’immobile si trova al primo piano accessibile tramite rampa esterna di 3,80 m di larghezza. L’unità è così composta: tramite portone di 4 m di larghezza e 3,6 m di altezza si accede alla zona principale di 270 mq con altezza di 4 m. Sul lato opposto all’ingresso si trovano due uffici, rispettivamente di 30 e 40 metri quadri ed entrambi con impianto di riscaldamento e raffrescamento ad aria. Adiacenti agli uffici troviamo servizi igienici e spogliatoio per un totale di 18 mq. A completare la proprietà due posti auto esterni di proprietà e due di fronte al portone d’accesso. L’immobile dispone di impianto elettrico e di illuminazione e si trova in un complesso industriale recintato e chiuso durante la notte. — annuncio pubblicato con GESTIONALEIMMOBILIARE.it




















